|
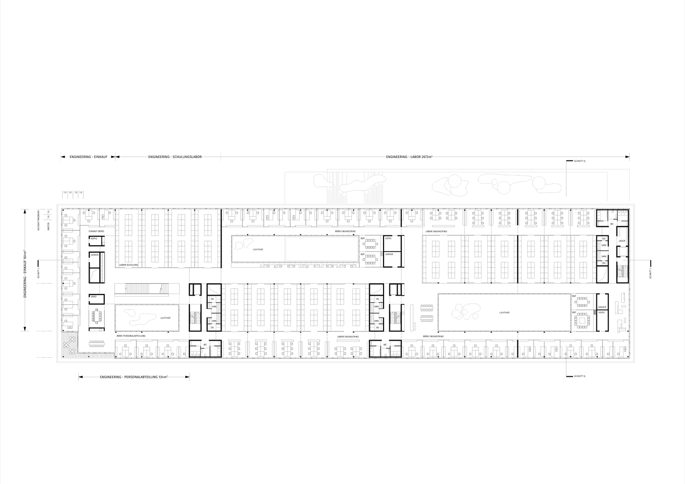
Windach | DELO | Forum und Engeneering 2018 | 2. Preis Auszug aus der Auslobung: Die DELO Industrieklebstoffe GmbH & Co KG beabsichtigt auf dem Firmengelände in Windach ein Versammlungsgebäude mit angeschlossenem Labor- und Bürogebäude zu errichten. Um dem starken Wachstum und den beständig hohen Ansprüchen an die Qualität des Arbeitsumfeldes gerecht zu werden ist im laufenden Prozess die Erweiterung auf den bisher unbebauten Grundstücken südlich der Delo-Allee geplant. An das Delo Forum werden besondere Ansprüche bezüglich Optik und Wertigkeit gestellt. Es soll das Zentrum der Liegenschaft bilden und das Gebäude „Verwaltung 1“ als Besucherzentrale ablösen. Abhängig von der Entwurfsidee kann das Engineering gestaltet werden. Es entspricht aber in der Funktion den bestehenden Laborgebäuden und eine korrespondierende Gestaltung ist im Sinne des Auslobers. Für die gemeinsame Empfangshalle ist eine großzügige, fußläufig trocken begehbare Anbindung an den Bestand erwünscht. |
|
|
Stuttgart | Rohrer Höhe | Mehrgenerationenwohnen - Kita - Pflegeheim 2018 | 2. Preis Auszug aus der Auslobung: Durch den Wettbewerb soll ein realisierbares Planungskonzept entwickelt werden für ein qualitativ hochwertiges neues Wohnquartier für Jung und Alt mit den Angeboten Pfelgeheim, heimverbundene Seniorenwohnungen und Begegnungsstätten, ergänzt um Service-Wohnen und Wohnen für alle Generationen mit einer integrierten Kinderbetreuungseinrichtung. |
|
|
Feldkirchen | Raiffeisenlagerhausgelände | Wohnungsbau 2017 | Teilnahme Auszug aus der Auslobung: Für ein brach liegendes Grundstück, das Gelände des ehemalige Raiffeisenlagerhauses, nahe dem Bahnhof Feldkirchen, möchte die Gemeinde Baurecht für Wohnungen und weitere gemischte Nutzungen schaffen und dieses selbst bebauen. Gefordert sind Konzepte, die vor allem hier Grundrissstrukturen aufweisen, die flexibel für verschieden große Raumeinheiten bzw. für verschiedene Nutzungen gewidmet werden kön- nen. Schwerpunkt dieser Konzepte sollen innovative Ansätze für neue Wohnformen sowie auch für die Verknüpfung von Wohn- und Nicht-Wohnnutzung sein. Der Binnenbereich bietet sich für ruhigeres bzw. qualitätvolleres Wohnen oder auch für grö- ßere Einheiten und neue Wohnformen an. |
|
|
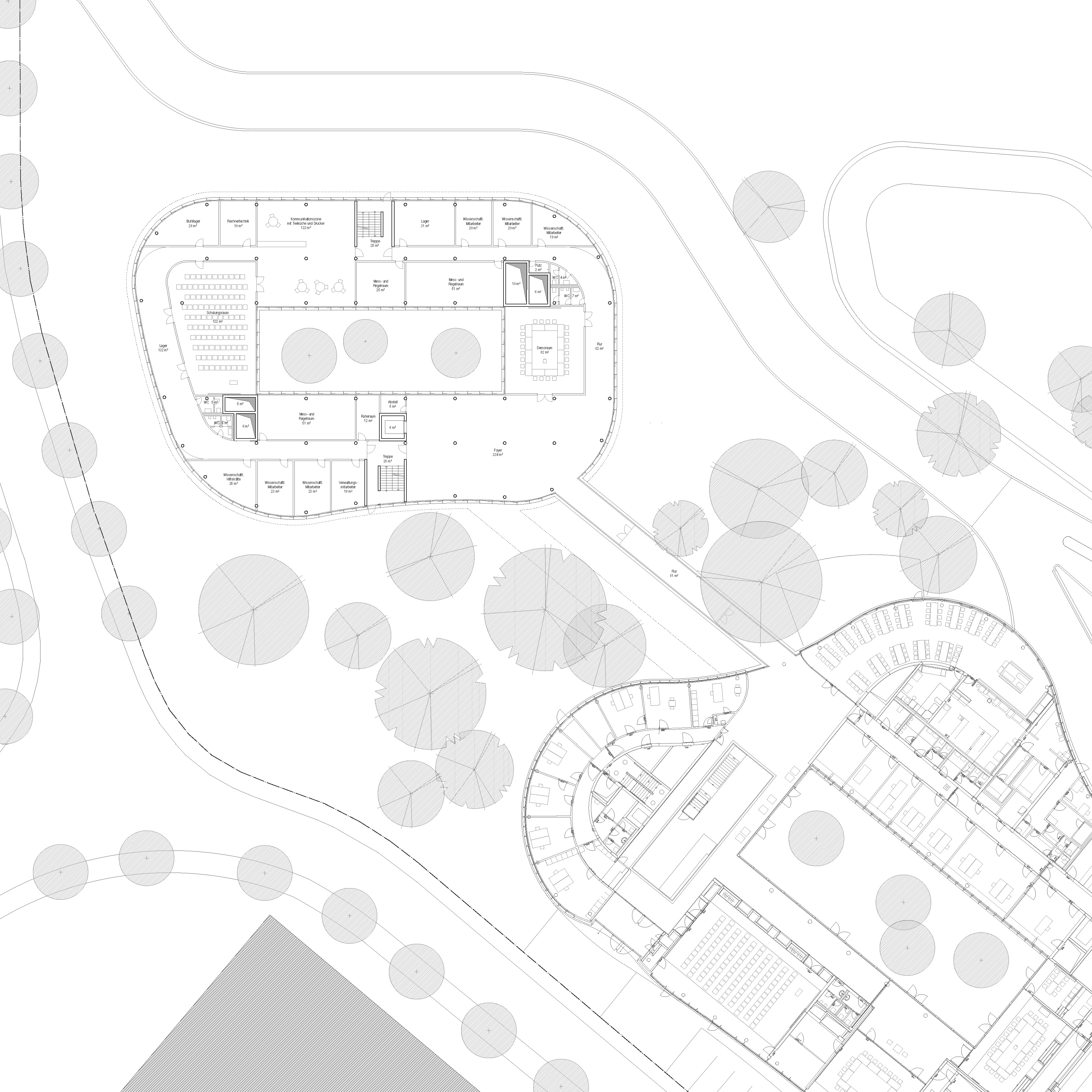
Fraunhofer | IIS Nürnberg | 3.BA 2016 | 2.Platz "Die geschwungene Form des bestehenden Baukörpers entstand durch den bewaldeten nördlichen und östlichen Teil des Grundstücks. Das Gebäude reagiert auf diesen Waldsaum mit einer geschwungenen Fassade, die den Baumbestand berücksichtigt. Der Baukörper setzt sich leicht schwingend entlang der Straße Nordostpark fort und bildet sich hier als straßenbegleitende Bebauung aus, die sich auch vor der Westseite der Testhalle fortsetzt und diese in den Hintergrund bringt" (Staab Architekten zum 2.BA). Dieses Entwurfsprinzip wird im 3. Bauabschnitt aufgenommen und fortgeführt. Auf dem nördlich des Bestandes gelegenen Baufeld finden sich exakt die gleichen Parameter. Die Weiterführung des Entwurfsgedanken bindet die beiden Gebäude zusammen und zeigt die beiden Baukörper als ein Institut. Der 3.BA nimmt sich allerdings städtebaulich zurück, mit größerem Abstand zur Straße, damit die Eindeutigkeit des Haupteingangs im 2.BA erhalten bleibt. Das Gebäude ist viergeschossig und passt sich somit an die Höhen in der Umgebung und des 2. Bauabschnitts an. Der Haupteingang des 2.Bauabschnitts befindet sich an der Straße Nordostpark im nördlichen Bereich des Baukörpers in Blickachse der Einmündung. Der 3.Bauabschnitt zieht hier in großem Radius einen weiten Bogen um der Expressivität des Vorgängerbaus Raum zu geben. Der Baukörper entwickelt seine Spannung aus dem Gegensatz der inneren Struktur um den zentralen Patio und der frei schwingenden Außenhülle, die auf die Bäume sowie den Bestand reagiert. Um den orthogonalen Patio werden die Mess- und Regelräume platziert, die Vielzahl der Büros ist entlang der Außenhülle angeordnet. Diese verfügen somit jeweils über einen Ausblick in die grüne Umgebung. Im Inneren des Gebäudes dienen Kommunikationsflächen in Form von beidseitig belichteten Flur-Aufweitungen der Begegnung der Mitarbeiter. Im Erdgeschoss sind nahe dem Übergang alle allgemeinen oder öffentlichen Bereiche angeordnet. Die Außenfassade wird analog zum Bestand geprägt von geschwungenen, metallischen Bänderungen. Diese sind im Gegensatz zum Bestand nun in Kupfer und Holz materialisiert. Ihre Ausprägung erfahren sie als auskragende Vordächer und geschlossene Brüstungen, die der Krümmung des Baukörpers folgen. |




















